山东亚青电力全体员工祝您身体健康,万事如意!

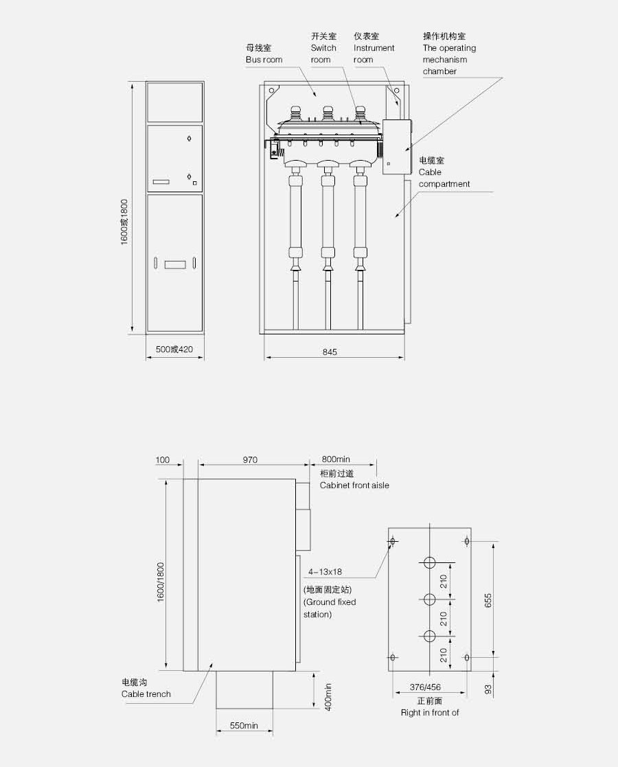
HXGN15-12(SF6)单元式交流金属封闭环网开关设备(以下简称环网柜)是我们在引进国外技术并按照国内农电及城网改造之要求而自行设计、研制成功的新一代高压电器产品。各项技术性能指标全 IEC62271-200: 2003和GB3906标准。
环网柜的主开关、操作机构及元器件采用ABB公司原装件或采用进 口部件国内组装生产的SFL-12/24型开关设备,也可根据用户需要配装国内知名品牌的SF6断路器或VD4-S型真空断路器。其操作方式分为动、电动两种。
柜体经数控机床加工后铆接而成,防护等级达到IP3X,并有可靠的机械联锁和防误操作功能。本产品具有体积小、重量轻、外型美观、操作简便、长寿命、高参数、无污染、少维护等极具显著的特点。
HXGN5-12(SF6)型单元式交流金属封闭环网开关设备,适用于交50Hz、12kV的电力网络中,作为电能的接受和分配之用。柜内主开关为SF6开关。

●环境温度:-25℃-+40℃,
●海拔高度:不超过2000m;
●相对温度:日平均值不大于95%;月平均值不大于90%;
●周围环境:周围空气不受腐蚀气体或可燃性气体、水蒸气等明显污染;无经常性的剧烈振动。
| 名称 | 单位 | 数据 |
|---|---|---|
| 额定电压 | kV | 12 |
| 额定频率 | Hz | 50 |
| 主母线額定电流/溶断器嚴大额定电流 | A | 630, 125 |
| 主回路、接地回路额定短时耐受电流 | kA/S | 20, 3 |
| 主回路、接地回路额定峻值耐受电流 | kA | 50 |
| 主回路、接地回路额定短路关合电流 | kA | 50 |
| 负荷开关满容量开断数 | 次 | 100 |
| 溶断器开断电流 | kA | 31.5, 40 |
| 额定闲环开断电流 | A | 630 |
| 额定转移电流 | A | 1600 |
| 机械寿命 | 次 | 2000 |
| 1 min工频耐压(峰值)相对、对地/隔离断口 | kV | 42, 48 |
| 當电沖击耐受电压(峰值)相间、对地/隔离断口 | kV | 75. 85 |
| 二次回路1 min工频耐压 | kV | 2 |
| 防护等级 | IP3X | IP3X |
